Steel frame house 176-109

176.32 sqm (14.70 x 8.25 lm)
4 rooms + 3 baths
see how we build
Frequently Asked Questions

Where can I view the construction packages?
To see what our packages include, we invite you to access the price calculator by clicking the "Calculate construction price" button. After selecting the desired construction stage – step 4 – the app will ask if you want to view the available package presentation. Select "YES", and the system will display an interactive step-by-step presentation of the construction elements.

Can the projects shown on the website be modified?
Absolutely! The projects are designed as a starting point only. Want to change just the interior layout? No problem – the price stays the same, as all calculations are based on the built square meter. Want to increase or decrease the surface? You can do that from the very first step in the price calculator! Costs will adjust automatically, and if you'd like to test other options, you can go back to previous steps for a new price simulation.

Specifications

Total area (sqm): 176.32
House footprint (sqm): 156.56
Usable area (sqm): 123.02
Terraces and balconies area (sqm): 19.76
Footprint (lm): 14.70 x 8.25
Building height (nr.): 2-story
Ground floor area (sqm): 75.23
Uncovered terraces on the ground floor (sqm): 19.76
1st floor area (sqm): 81.33

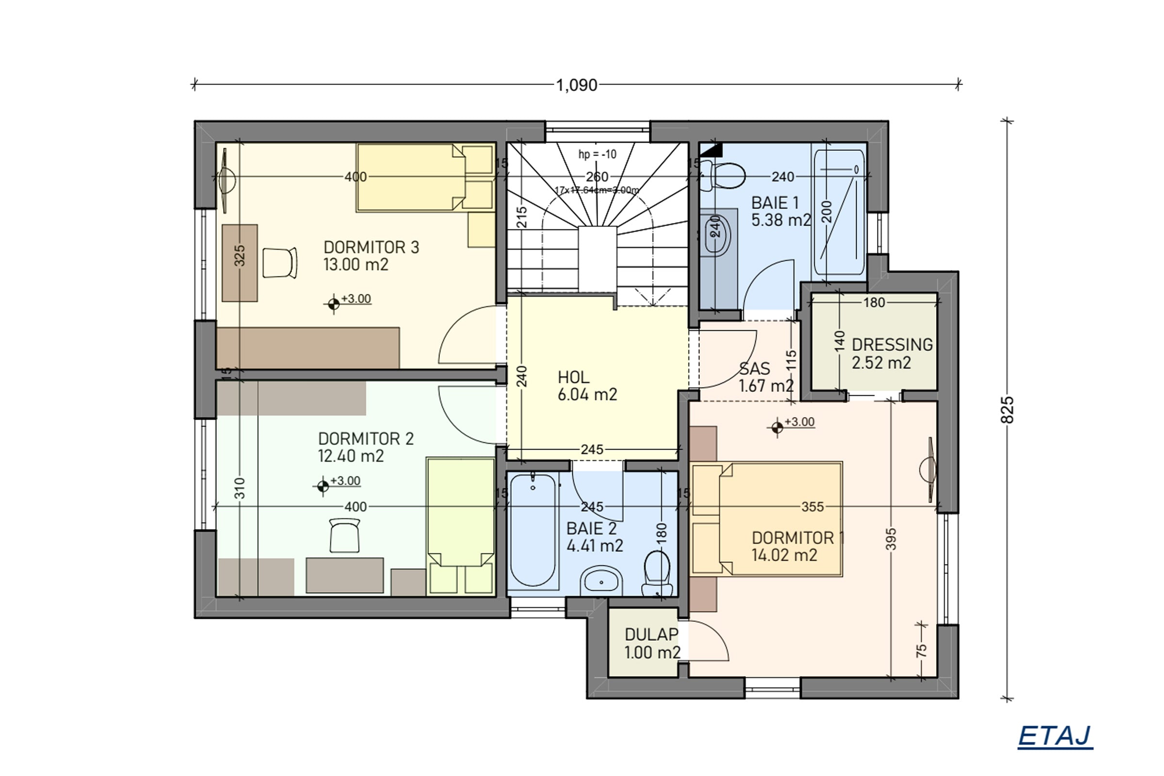
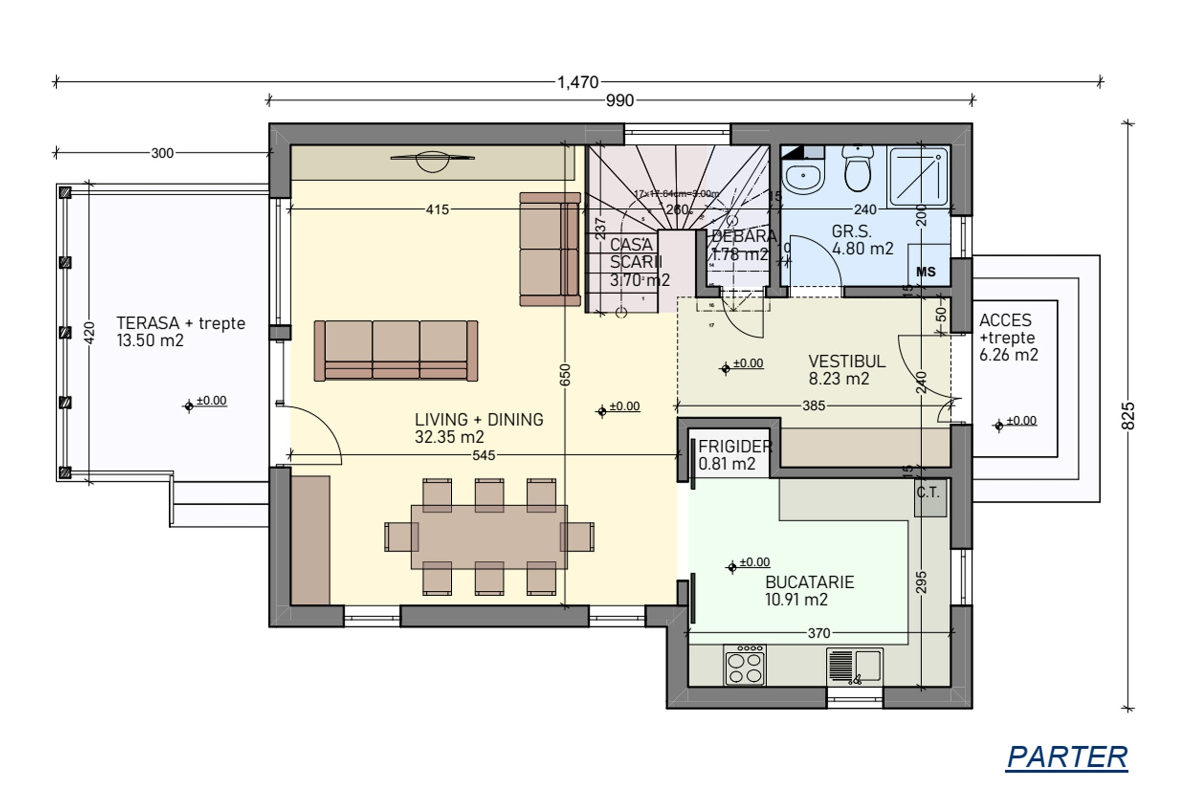
This steel frame house with 4 bedrooms is optimized to the maximum usable space in a relatively small area, with a modern layout. On the ground floor, we notice the spacious living room that includes the kitchen with a dining area, one bedroom, and 2 storage spaces - one of which is located under the staircase. The upper floor plan has 3 bedrooms, a bathroom, and another storage space. The two storey house project can be placed on plots with a minimum width of 14.16 meters. We recommend this construction for families of up to 5 members.

Tips and tricks

Once the house is completed and the family moves into the new residence, it is essential to conduct inspections and regular maintenance to ensure that the property remains in optimal condition and that the lifespan of its components is extended. This practice not only helps prevent deterioration and major issues in the future but can also reduce long-term maintenance and repair costs.
Periodic inspections should include checking the roof for any leaks or damage, inspecting the plumbing system and fixtures for leaks or blockages, examining the electrical system for any issues or exposed wires, and checking the heating and cooling system for proper operation and efficiency.
Additionally, it is important to pay attention to the regular maintenance of various components of the house. This may include cleaning and maintaining the heating and cooling system, checking and regularly replacing air filters, periodically cleaning and sealing windows and doors to ensure proper insulation, and regularly cleaning the pipes and drainage system to prevent blockages and leaks.

Wolf Construct advantages

Warranty 75 years
Competitive price
All with a single contractor
Realtime price calculator
Customized design
International coverage
Turnkey house 90-120 days
Execution in any season
Open showroom
Energy efficiency
Seismic resistance
European standards compliance

Curious about how much your project costs?

  • 1. House configuration

    Enter the desired areas for each level. Prices will be calculated per square meter of construction.

  • 2. Design and foundation

    Choose whether you want us to design the construction and carry out the foundation or if you prefer to outsource these stages.

  • 3. Construction packages

    We present you the packages and afterward, you choose the one that suits you. You get the price and you can schedule online.